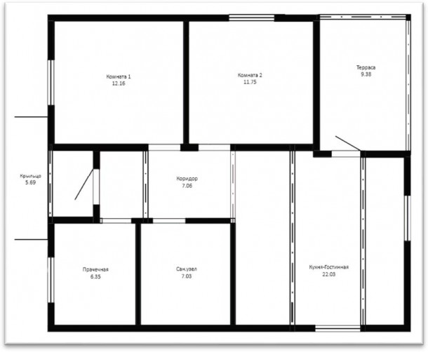
Дом «Надежда» 91 м2 — одноэтажный дом в современном стиле.
Отличается рациональной планировкой: минимум нефункциональных зон, максимум удобства. Компактная форма снижает теплопотери и упрощает разводку инженерных систем. Дизайн лаконичный: чистые линии, отсутствие избыточного декора. Оконные проёмы расположены так, чтобы обеспечить хорошее естественное освещение. Дом сочетает практичность, экономичность строительства и комфорт для семейной жизни.
Комплектации:
ДОМОКОМПЛЕКТ 1 650 000 р.
СТАНДАРТ 4 100 000 р.
КОМФОРТ 5 200 000 р.
КОМФОРТ+ 6 800 000 р.
Выбор местоположения
Мы свяжемся с Вами в течение дня.